|
|
Архитектура Австралии до середины XX века ![]()
Всеобщая история архитектуры в 12 томах / Государственный комитет по гражданскому строительству и архитектуре при Госстрое СССР, Научно-исследовательский институт теории, истории и перспективных проблем советской архитектуры. — Ленинград ; Москва : Издательство литературы по строительству, 1966—1977.
Архитектура Австралии до середины XX векаАРХИТЕКТУРА АВСТРАЛИИ
—стр. 819—
На протяжении XX в. Австралийский доминион в процессе распада Британской империи приобретает все большую самостоятельность. Несмотря на экономическую и политическую зависимость от метрополии, тенденция к превращению Австралии в некое подобие «страны-матери» — Англии постепенно ослабевает; ее искусство, литература, архитектура приобретают свои специфические черты.
После первой мировой войны архитектура Австралии значительно отставала в своем развитии от передовых стран Европы и Америки: города застраивались на основе сложившейся в XIX в. прямоугольной сетки улиц традиционными типами зданий в духе эклектики и стилизаторства (рис. 1). Война 1914—1918 гг., временно освободившая рынок Австралийского союза от конкуренции иностранных товаров, дала сильный толчок развитию промышленности: иностранные фирмы, которые занимали господствующее положение в важнейших отраслях экономики страны, выстроили первые в стране крупные промышленные предприятия.
Крупнейшим градостроительным мероприятием в период между двумя мировыми войнами было строительство новой федеральной столицы — Канберры, проект которой был разработан на основе предложений Международного конкурса 1912 г. (см. ВИА, т. 10) и утвержден в 1918 г. В основе премированного проекта американского архитектора У. Б. Гриффина лежала получившая в то время широкое распространение идея города-сада с несколькими центрами, вокруг которых формировались радиально-концентрические системы улиц (рис. 2).
Застройка Канберры, которую австралийцы мечтали превратить в лучшую из столиц мира, началась в 1920 г. и продолжалась много лет¹. Город застраивался малоэтажными административно-общественными зданиями и индивидуальными жилыми домами-коттеджами, свободно расположенными среди садов. Раскинувшись на большом пространстве, он так и не стал единым компактным организмом. Выстроенные за последние годы отдельные многоэтажные здания — университет, гостиница — картины существенно не изменили. По словам Б. Даниэльсона, даже в 50-х годах Канберра — это «...единственная в мире столица, где чиновники по дороге со службы могут собирать грибы и стрелять кроликов с балкона...». Чисто административный центр с населением в 36 тыс. человек, Канберра не играет большой роли в экономической жизни страны.
____________
¹ Столица государства была перенесена в Канберру из Мельбурна в 1927 г.
Исторические условия развития Австралии определили исключительно высокую степень концентрации населения в городах и рабочих поселках, где сосредоточено сейчас более 80% всех жителей страны. Среди них выделяются города-порты (столицы штатов) Сидней, Мельбурн, Аделаида, Перт — главные промышленные центры и поставщики сырья на мировой рынок.
—стр. 820—
Наиболее крупные города сконцентрированы на восточном и юго-восточном побережье материка.
![]()
1. Мельбурн. Одна из центральных улиц города
В условиях капитализма сложился особый вид поселений аборигенов (коренных жителей Австралии) — резервации; для них отводятся отдаленные пустынные и тропические районы. Незначительная часть аборигенов живет в особых поселках близ больших городов, так называемых «христианских миссиях».
Общественные сооружения в 20-х — начале 30-х годов строились в подчеркнуто монументальных торжественных формах «мавританского стиля» или неоклассики. Таков, например, мемориальный памятник участникам первой мировой войны (рис. 3), открытый в Мельбурне в 1934 г. Однако в конце 30-х — начале 40-х годов появляются общественные сооружения рационалистического направления. Это прежде всего большие больничные комплексы: Главный госпиталь в Сиднее и Королевский госпиталь в Мельбурне (1939—1943; архитекторы Стефенсон и Тернер), военный госпиталь в Гейдельберге (1942; арх. И. Лейтон, рис. 4). Их многоэтажные корпуса выстроены с использованием железобетонных и стальных конструкций и отличаются удачным функциональным решением.
Уникальным инженерным сооружением межвоенного периода является однопролетный арочный мост через Сиднейский залив, в то время самый широкий¹ мост в мире (1923—1932; рис. 5).
____________
¹ Ширина моста 49 м, длина — более 1 км.
После второй мировой войны изменяется положение Австралии в системе мировой экономики: из аграрного придатка Британской империи она превращается в индустриальную страну со всеми признаками монополистического капитализма. При этом значительно усиливается влияние США. Наступает перелом в развитии австралийской архитектуры. В городах Восточной и Южной Австралии (особенно богатой полезными ископаемыми) и вокруг них строятся крупные промышленные комплексы горнодобывающей, металлургической, машиностроительной, электротехнической промыш-
—стр. 821—
ленности, а также пищевые комбинаты в больших и малых городах. Бурное развитие промышленности и связанный с ним рост городов и промышленных центров сопровождается миграцией населения в города и усилением иммиграции в страну извне¹.
____________
¹ За 10 лет после 1946 г. в Австралию переселилось более 1 млн. чел., главным образом британского происхождения.
![]()
2. Канберра. Генеральный план. Здание парламента, 1927 г. Арх. У. Гриффин
Промышленный и строительный «бум» дал сильный толчок развитию строительной техники. Архитектура освобождается от налета провинциализма и следования чисто английским традициям. Она впервые поднимается до уровня мировых достижений. Начиная с 50-х годов «новая архитектура» становится господствующим направлением. Стремление использовать принципы, установившиеся во всей мировой архитектуре и получившие интернациональное значение, становится характерным для Австралии. Одновременно с этим особую остроту приобретает проблема создания национального «австралийского стиля» на основе достижений мировой архитектуры.
К этому времени относятся первые значительные мероприятия по составлению генеральных планов и реконструкции крупных городов. В 1951 г. был утвержден первый в Австралии проект районной планировки — план Камберлендского графства, охватывающего главный промышленный
—стр. 822—
район страны, сложившийся вокруг Сиднея, где проживает 57% населения штата, или 23% населения Австралии. В 50-е годы были составлены генеральные планы развития Мельбурна, Ньюкасла, Перта и других городов. Планы предусматривали их комплексное развитие, разуплотнение застройки, зонирование территории, создание объездных магистралей, парков, зеленого пояса и т. д.
![]()
3. Мельбурн. Памятник участникам первой мировой войны, 1934 г.
В масштабах всей страны градостроительные мероприятия были направлены на децентрализацию населения. В связи с этим предусматривалось строительство городов-спутников вокруг крупных центров; так возникли Нипиена близ Сиднея, Элизабет близ Аделаиды и другие города. Было предусмотрено строительство ряда новых городов, тяготеющих к промышленным предприятиям. Один из них — Куинана — возник недалеко от Петра — столицы штата Западная Австралия. Новый город предназначен для размещения рабочих нефтеочистительного и сталелитейного заводов, выстроенных здесь в годы войны.
![]()
4. Гейдельберг, штат Виктория. Военный госпиталь, 1942 г. Арх. И. Лейтон
Разрабатываются специальные проекты планировки и застройки населенных пунктов в засушливых районах страны.
Несмотря на проведение политики децентрализации, население больших городов продолжает расти. Стихийно растущие одноэтажные пригороды, плотным кольцом окружающие деловые центры больших городов, чрезвычайно характерны для современной Австралии.
Основным типом жилища продолжает оставаться индивидуальный жилой дом, в архитектуре которого развиваются традиции австралийского жилого дома XIX в. (см. ВИА, т. 10).
В 20-е годы в связи с развитием романтических тенденций особенно популярен был тип калифорнийского бунгало. Среди множества эклектических построек, имитировавших различные стили, уже тогда в индивидуальных жилых домах можно было встретить постройки функционалистского направления. В планировке дома, расположенного в отличие от своего прототипа — английского коттеджа — обычно в одном уровне, постепенно определилась тенденция к группировке помещений (весьма различных в зависимости от состава семьи и социального положения хозяев) вокруг центрального холла.
—стр. 823—
![]()
5. Сидней. Мост через залив, 1932 г.
В проектах жилых домов послевоенного времени наряду со стремлением к простоте, удобству и экономичности ведутся поиски своеобразных индивидуализированных решений при наличии стандартизированных элементов. Это проявляется в умелом применении местных строительных материалов, в стремлении учесть особенности ландшафта, климата и быта австралийцев (например, использование веранд, разнообразных солнцезащитных устройств как элементов композиции здания, рис. 6, 7). Именно в архитектуре индивидуального жилого дома проявились наиболее характерные черты так называемого «современного австралийского стиля».
В 50-е годы в связи с увеличением плотности застройки и стремлением предотвратить чрезмерное разрастание пригородов в крупных городах, и прежде всего в Сиднее и Мельбурне, впервые в Австралии началось строительство многоэтажных многоквартирных жилых домов и жилых комплексов. Лишенные корней в местной архитектурной традиции, эти постройки первоначально носят подражательный характер, и лишь постепенно на основе достижений современной архитектуры появляются более самостоятельные архитектурные решения (рис. 8).
В начале 60-х годов в связи с общей тенденцией к увеличению этажности появились первые жилые дома башенного типа. Один из самых высоких в стране 26-этажный жилой дом на 168 квартир был построен в Сиднее арх. Г. Зейдлером в 1963 г.
Для жилых комплексов Австралии характерна смешанная застройка. Крупный жилой комплекс строится в Сиднейской бухте на мысе Мак Махон. Сочетание нескольких типов домов различной этажности не только обеспечивает здесь разнообразие квартир по площади и планировке, но и позволяет создать выразительный силуэт застройки. Внутреннее пространство комплекса раскрыто в сторону моря.
Высокая степень концентрации капитала, характерная для молодых капиталистических стран, привела к созданию крупных монополистических объединений в области строительства, что способствовало
—стр. 824—
его индустриализации и дало возможность использовать новейшие достижения строительной техники.
Начиная с 50-х годов в композиции крупных городов все большее место занимают небоскребы (рис. 9), напоминающие по характеру постройки Л. Мис ван дер Роэ. Одним из первых зданий такого типа был Дом страхового общества в Сиднее (1958, арх. Бейтс, Смарт, Маккатчён).
![]()
6. Тарремарра, штат Новый Южный Уэльс. Жилой дом, 1950 г. Арх. Г. Зейдлер
В отличие от этих сооружений, принадлежащих обычно крупным монополиям и трестам, небольшие административные и общественные здания свидетельствуют о стремлении архитекторов найти своеобразный облик для каждого из них. Так, например, необычный характер фасадов общежития студентов в Аделаиде или Дома художников в Сиднее определяет система солнцезащитных устройств (рис. 10).
Выдающимся событием 50-х годов было строительство спортивных сооружений к Олимпийским играм в Мельбурне (1956 г.). Среди них выделяется здание крытого плавательного бассейна (арх. Дж. и Ф. Мёрфи, К. Борлэнд, Р. Макинтаир, рис. 11). Для перекрытия огромного пространства его зала использованы большепролетные висячие конструкции. Наклонные стены служат одновременно трибунами для зрителей. Обнаженные конструкции — стальные трубчатые фермы и тросы — определяют характер облика здания.
Эстетические возможности тектоники современных подвесных систем использовали архитекторы Янкен, братья Фримен, Гриффитс и Симпсон, построившие в 1959 г. в Мельбурне Музыкальную арену на открытом воздухе, где зрители размещаются прямо на земле на склоне холма. Своеобразный облик этого сооружения создан при помощи двояковогнутой вантовой конструкции; покрытие в 3700 м² в виде металлической сетки, заполненной фанерой и алюминием, укреплено на мачтах (рис. 12).
В 1959 г. в Канберре было выстроено здание Академии наук, расположенное на ⅔ под землей (архитекторы Р. Граундз, Ф. Ромберг, Р. Бойд; рис. 13). Для перекрытия огромного пространства круглого в плане сооружения использованы конструктивные возможности бетонных оболочек.
![]()
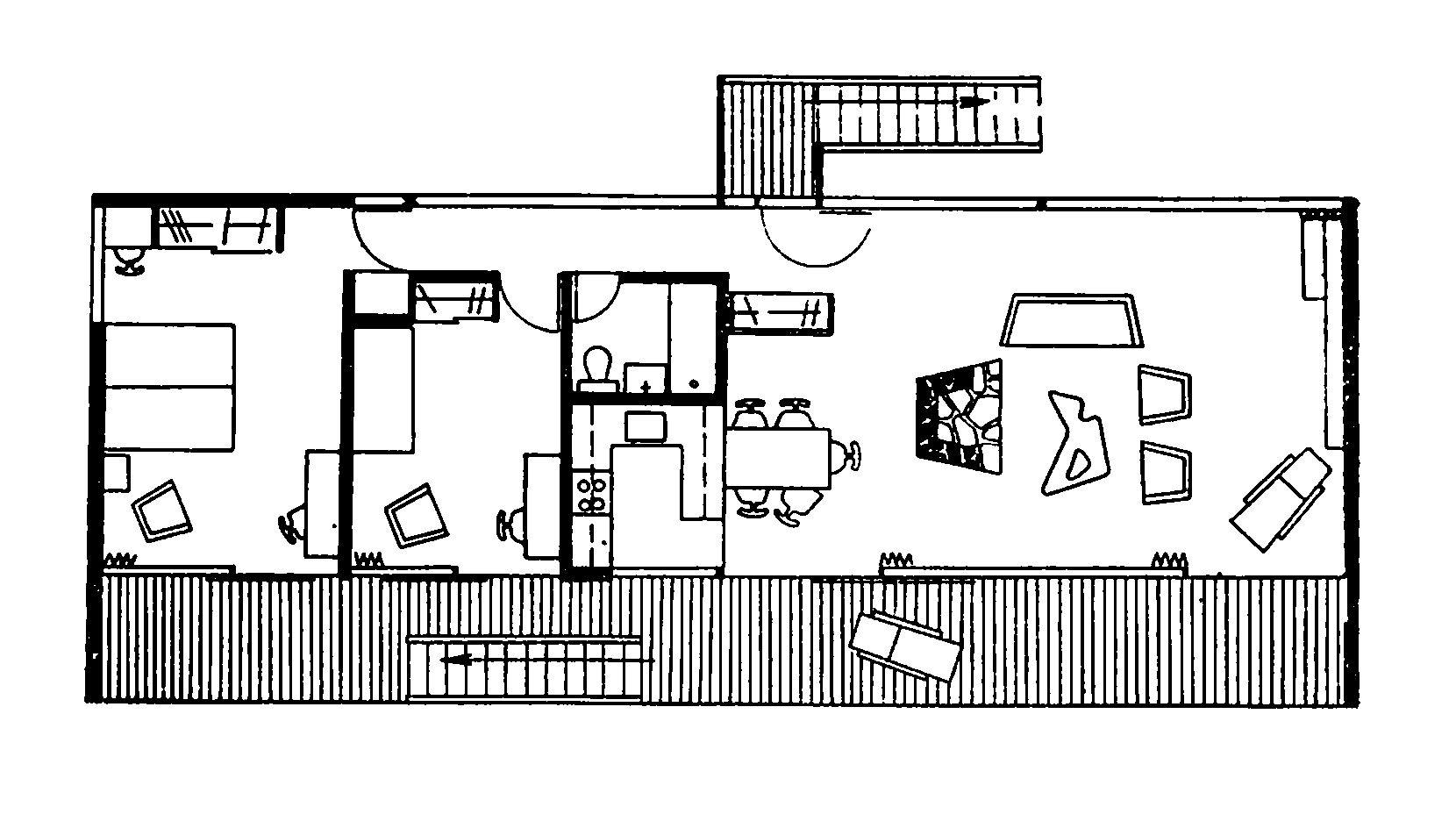
7. Сидней. Жилой дом, 1960-е годы. Общий вид, план
С начала 60-х годов в развитии архитектуры Австралии появляются новые тенденции: усиливаются характерные и для других стран формально-эстетические по-
—стр. 825—
![]()
8. Сидней. Жилой дом в Даймонд Бэй, 60-е годы. Арх. Г. Зейдлер
![]()
9. Сидней. Конторское здание, 50-е годы
![]()
10. Сидней, Дом художников, 60-е годы
—стр. 826—
![]() ![]()
11. Мельбурн. Плавательный бассейн, 1956 г. Архитекторы Дж. и Ф. Мёрфи, К. Борланд, Р. Макинтаир. Общий вид, разрез
![]()
12. Мельбурн. Музыкальная арена, 1959 г.
Архитекторы Янкен, бр. Фримен, Гриффитс, Симпсон
—стр. 827—
![]()
13. Канберра. Здание Академии наук, 1959 г. Архитекторы Р. Граундз, Ф. Ромберг, Р. Бойд. Общий вид, план
![]()
14. Сидней. Реконструкция Сиднейской бухты, 1962 г. Фото с макета
![]()
15. Нью-Норциа. Церковь, 1960 г. Инженеры П. Л. Нерви, Ф. Вакхини, архитекторы А. Нерви, К. Ванноно
—стр. 828—
![]() ![]()
—стр. 829—
иски новых выразительных форм, разрушающих привычные представления об эстетических возможностях конструкций.
В многоэтажных общественных и жилых зданиях появляются сложные пространственные сочетания криволинейных объемов. Таков, например, проект застройки Сиднейской бухты, 1962, (рис. 14).
Особенной выразительности достигают церковные постройки. Так, П. Л. Нерви совместно с инж. Ф. Вакхини и архитекторами А. Нерви и К. Ванноно строят церковь в Нью-Норциа, в создании художественного облика которой используют параболические своды (1960; рис. 15).
Наиболее известным и противоречивым сооружением, в котором в обнаженной форме проявились характерные черты одного из направлений современной архитектуры — так называемой «архитектуры-скульптуры»— является здание Оперного театра в Сиднее, строящееся по проекту датского архитектора Йорна Утцона. Этот проект был отмечен первой премией на международном конкурсе 1956 г. (рис. 16). Здание театра, расположенное на полуострове среди открытого пространства Сиднейской бухты, состоит из двух главных композиционных элементов: высокой прямоугольной в плане платформы, внутри которой сосредоточены все подсобные помещения театра, и пространственных оболочек перекрытия, под которыми размещена зрелищная часть здания с двумя театральными залами на 300 и 1200 мест.
По мысли автора, как бы парящие над зданием сложно сгруппированные оболочки высотой около 67 м должны символизировать наполненные ветром паруса и, таким образом, зрительно связывать город с морем. Однако в ходе строительства выявилась невозможность осуществить первоначально заданную произвольную пластическую форму оболочек, и автору пришлось внести в проект существенные изменения, приводя в соответствие архитектурную форму и подчиненные ей функциональные и конструктивные решения.
![]()
17. Сидней. Конторское здание-башня, 1967 г. Арх. Г. Зейдлер. План, общий вид
В 1967 г. в Сиднее было начато строительство круглого в плане 50-этажного конторского здания высотой в 183 м, в котором использованы последние достижения мировой строительной техники, в том числе сборно-монолитные конструктивные системы П. Л. Нерви; здание строит фирма арх.
—стр. 830—
Г. Зейдлера (рис. 17). Здесь в основу архитектурного образа положено строго целесообразное решение функциональной структуры и конструкций сооружения; несущие колонны-ребра, идущие по высоте здания, являются основным элементом его архитектурной композиции.
* * *
Развитие архитектуры Австралии XX в. характерно для страны, превратившейся за период жизни одного поколения из аграрной колонии Великобритании в индустриально-аграрную страну со всеми противоречиями, присущими монополистическому капитализму.
Поднявшись до уровня мировых достижений современной архитектуры и освоив ее передовой опыт, архитектура Австралии в 60-е годы перешла к поиску путей самостоятельного творческого развития.
25 декабря 2025, 14:56
0 комментариев
|
Партнёры
|


























Комментарии
Добавить комментарий